Ref. 725 Designer Wohnung zwischen Montecarlo und Sanremo – mit Traumblick & Weinkeller
18010 Montalto Ligure, Imperia, ItalienNozioni di base
- Categoria : Angebautes Haus
- Tipo : Haus
- Camere da letto: 2
- Bagni: 1
- Mezzi bagni : 1
- Camere totali: 4
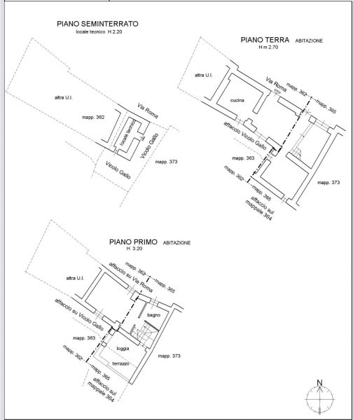
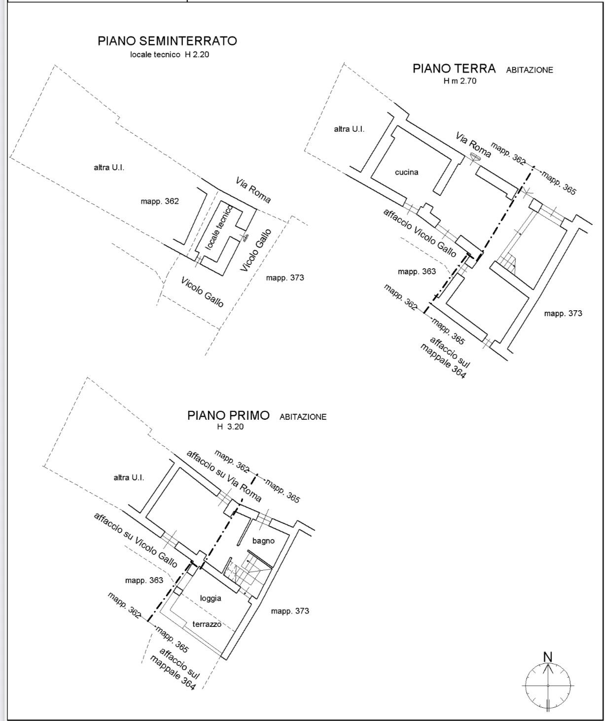
- Piani: 2
- Piano terra : 1
- La zona : 100 m²
- Dimensione del lotto: 50 m²
- Anno costruito : 1790
- Anno ristrutturato: 2024
- Ort: Montalto Ligure
- Energieeffizienzklasse: A+
Descrizione
-
Descrizione:
Designerwohnung mit Weinkeller, Traumterrasse – Nähe Montecarlo und Sanremo
Zum Verkauf steht eine außergewöhnliche Immobilie, die nach einer kompletten Sanierung mit viel Liebe zum Detail von einem Architekten aus Turin neu gestaltet wurde.
Diese Designerwohnung vereint moderne Eleganz mit dörflichem Charme und bietet:
• Maßgefertigte Designerküche
• Hochwertige Designer-Möbel
• Terrasse mit atemberaubender Aussicht
• Esszimmer mit offenem Kamin
• Wohnzimmer mit TV-Bereich
• Schlafzimmer en Suite mit Klimaanlage
• Zentralheizung
• Stilvoller Boden in Cemento Kerakoll
• Hochwertige Holzfenster
• Angeschlossener Weinkeller und Hauswirtschaftsraum
• Alles bis ins kleinste Detail durchdacht und ausgeführt, teil Moebiliert mit Designer MöbelDie Wohnung liegt mitten im charmanten Dorfkern, ohne direkte Zufahrt – öffentliche Parkplätze befinden sich jedoch in kurzer Geh Distanz. Die Entfernung zum Meer beträgt ca. 15 Minuten mit dem Auto. Montecarlo und Sanremo sind ebenfalls bequem erreichbar.
Sie suchen etwas Besonderes?
Diese Immobilie ist ein echtes Unikat – ideal für Design Liebhaber oder als stilvoller Zweitwohnsitz.Bei ernsthaftem Interesse vereinbaren wir gerne einen Besichtigungstermin vor Ort und stellen Ihnen alle weiteren Details persönlich vor Ort.
Mostra tutta la descrizione
Dettagli dell'edificio
- Copertura del pavimento : Kerakoll Zement
- Seminterrato: Fahrrad Keller, Service Raum, Weinkeller
- Tetto : Neu
- Parcheggio : Öffentlicher Parkplatz
Servizi e Caratteristiche
- :
- Caratteristiche:
