Ref. 901 Elegante, barrierefreie Gartenwohnung im Herzen von DIANO MARINA
Diano MarinaNozioni di base
- Categoria : direkte Zufahrt, mit Garten, Stadtwohnung im Zentrum mit Balkon, Wohnung direkt am Meer
- Tipo : Wohnung
- Camere da letto: 1
- Bagni: 1
- Camere totali: 3
- Piani: 0
- Piano terra : 1
- La zona : 60 m²
- Dimensione del lotto: 50 m²
- Anno costruito : 1980
- Anno ristrutturato: 2025
- Ort: Diano Marina
- Energieeffizienzklasse: A
Descrizione
-
Descrizione:
Diano Marina – zentrale, strandnahe Eleganz auf einer Ebene
Im Herzen von Diano Marina, nur wenige Gehminuten vom Strand entfernt, steht diese exklusive, vollständig renovierte Wohnung zum Verkauf. Die Immobilie befindet sich in einem kleinen, eleganten Mehrfamilienhaus und bietet barrierefreies Wohnen ohne Treppen – modern, komfortabel und ideal für jedes Alter.
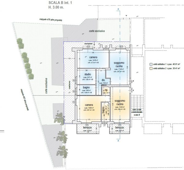
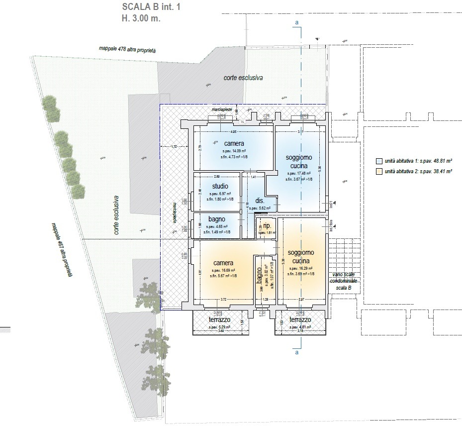
Die Wohnfläche von ca. 60 m² umfasst:
* lichtdurchflutetes Wohn- und Esszimmer im Open-Space-Stil
* Schlafsofa im Wohnbereich für Gäste
* großes Doppelschlafzimmer
* praktischer Abstellraum
* modernes Bad mit Dusche
* inkl. Möbel EinrichtungDirekter Zugang zum privaten Garten mit Außendusche – perfekt zum Entspannen und Genießen des mediterranen Klimas. Die Wohnung wurde komplett kern saniert nach Schweizer Standard, hochwertig und präzise bis ins Detail.
Optionale Erweiterungen:
* Möglichkeit einen privaten Parkplatz separat zu erwerben
* Zusätzlich kann die Nachbarwohnung (Ref. 902) mit erworben werden, diese verfügt über 2 Doppelschlafzimmer und einen privaten Parkplatz. Ideal zur Zusammenlegung oder als Investment-Erweiterung.Perfekt als Zweitwohnsitz, zum Überwintern in Ligurien mit über 300 Sonnentagen pro Jahr, oder als Renditeobjekt zur Ferienvermietung. Auf Wunsch übernehmen wir Vermietung & Verwaltung direkt vor Ort.
Unsere Immobilien Agentur CASARIVIERA Srl.seit über 28 Jahren fest in der Ligurien verankert, unter Schweizer Leitung, betreuen wir internationale Käufer professionell bis zum Abschluss und darüber hinaus.
Eine seltene Gelegenheit in bester Lage , wir präsentieren Ihnen diese Immobilie gerne persönlich.
Mostra tutta la descrizione
Dettagli dell'edificio
- Copertura del pavimento : Fließen
- Seminterrato: 1 Abstell Raum, Kein Keller
- Tetto : Neu
- Parcheggio : Kein privater Parkplatz, Möglichkeit zu Kaufen
Servizi e Caratteristiche
- :
- Caratteristiche:
